Продається затишна 2-кімнатна квартира в ЖК Нова Англія! (№ 213-117-030)
Ціна: 3 634 101 грн.

Михайла Максимовича, Київ, Голосіївський, м. Васильківська
Характеристики
| Ціна: | 3 634 101 грн. |
|---|---|
| № об'єкта: | 213-117-030 |
| Кімнат: | 2 розд |
| Поверх: | 14 / 21 ліфт |
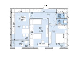
| Площа: | 60,71 / 28 / 16 м2 |
| Санвузол: | 2 роздільний |
| Балкон: | лоджія |
| єОселя: | - |
| Ремонт: | Без |
Опис
Продається затишна 2-кімнатна квартира у новобудові 'Нова Англія' у Голосіївському районі Києва!
Параметри:
- Площа: 60,71 кв м.
- Поверх: 14-й поверх з 21 .
- Адреса: Київ, вул. М. Максимовича.
- Будинок: 'Ноттінгем'.
- Здача в експлуатацію заплановано на 2 квартал 2025 року.
- Комісія - 2 %. Покупець не сплачує жодних податків.
Роздільне планування. Квартира продається без ремонту, що дає вам можливість самостійно створити інтер'єр своєї мрії.
Вигоди проживання в цьому районі:
1. 10 хв пішки до ст. м. Васильківська.15 хв доступність до супермаркетів (Ашан, Сільпо, АТБ, Коло, ЛотОк, Новус),ТРЦ (Магелан, Respublika, Ocean Plaza).
2. Інфраструктура: поруч знаходяться школи (Європейський колегіум, №260, 220), садочки('Маленька Європа', 'Антошка', 'Везунчик', заклади дошкільної освіти №150,196,667 і тд), поштове відділення 'Нова пошта' №249, магазини та ресторани для комфортного життя.
3. Екологічна зона: парки і зелені зони роблять цей район ідеальним для прогулянок та відпочинку (Єлизаветинський парк з озерами, ВДНГ та Голосіївський парк).
4. Сучасне життя: будинок обладнаний сучасною інфраструктурою та зручностями для максимального комфорту мешканців. Комплекс має закриту територію, що відповідає концепції 'місто в місті', та забезпечений надійними системами безпеки. До ваших послуг наземний та підземний паркінг, який також може служити як укриття.
Зателефонуйте прямо зараз, щоб домовитися про перегляд!







