Головна >> Новобудови >> Нова Англія

Нова Англія

Нова Англія фото

«Нова Англія» – житловий комплекс, який відноситься до нерухомості комфорт-класу і спроєктований в сучасному британському стилі. Новобудова являє собою одинадцять будинків від чотирнадцяти до шістнадцяти поверхів.

Зовнішні стіни будинків зводяться із спеціальних енергоефективних модулів, що мають облицювання декоративною штукатуркою і клінкерною плиткою. Віконні блоки виконані з профілю «Rehau» і засклені двокамерними склопакетами. Як утеплювач фасадів використовуються плити мінеральної вати і армованого пінополістиролу товщиною шістнадцять сантиметрів.

«Нова Англія» – це житловий комплекс закритого типу з власною інфраструктурою, виконаний у єдиній архітектурній концепції.  Витончена композиція, теплі кольори фасадів, класичні декоративні елементи та монументальні вхідні групи створюють атмосферу затишного англійського містечка, розташованого в одному з найкомфортніших столичних районів.

Будинок
Збірно-каркасна технологіяСтіни: залізобетонОпалення: автономне (в будинку)буд. Лінкольн, Віндзор - 1 кв. 2024буд. Ноттінген - 2 кв. 2024буд. Престон - 2 кв. 2025
Прибудинкова територія
Піша доступність до ст. М ВасильківськаЗакрита теріторіяУнікальна архітектураДвір без машинПідземний паркінг

Об'єкти в цьому ЖК

Ціна: 85 000 $
1
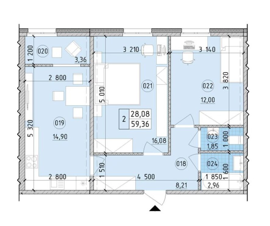
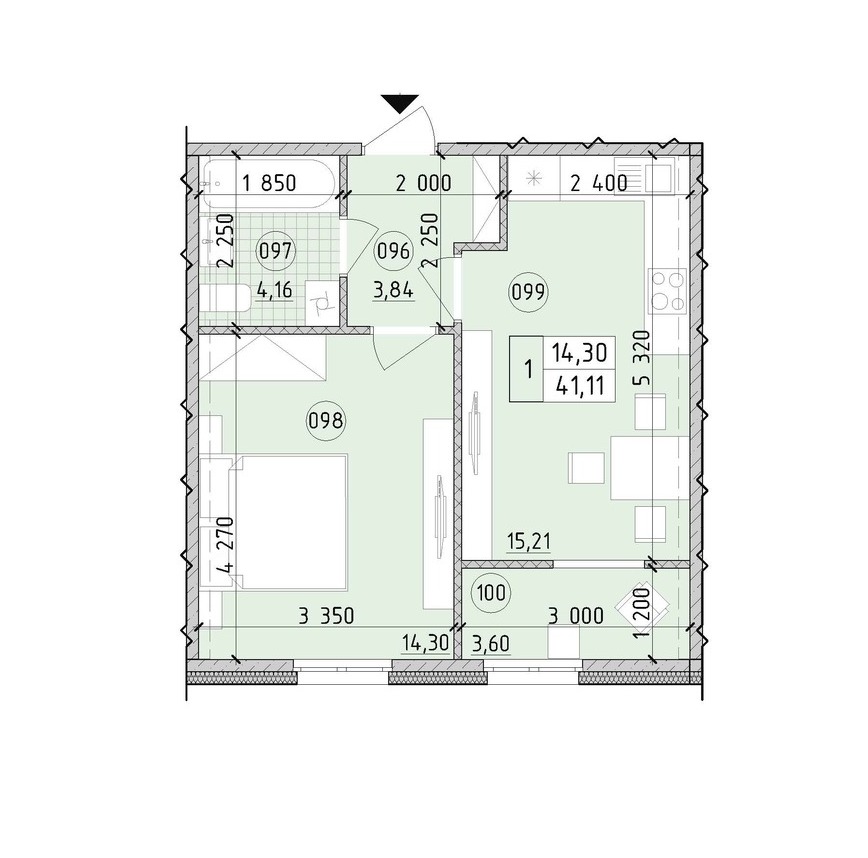
38,7 / 22,62 / 5,13 м2
11 / 14
ID 212-904-016

Об'єкт на карті