Продається 2к квартира в ЖК Нова Англія, буд. Віндзор, зданий! (№ 213-097-988)
Ціна: 3 820 320 грн.

Михайла Максимовича, 24, Київ, Голосіївський, м. Васильківська
Характеристики
| Ціна: | 3 820 320 грн. |
|---|---|
| № об'єкта: | 213-097-988 |
| Кімнат: | 2 розд |
| Поверх: | 12 / 21 ліфт |
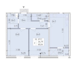
| Площа: | 60,64 / 26,8 / 16 м2 |
| Санвузол: | 2 роздільний |
| Балкон: | лоджія |
| єОселя: | - |
| Ремонт: | Без |
Опис
2-кімнатна квартира в ЖК “Нова Англія” – ідеальний варіант для комфортного життя!
Пропонуємо до продажу світлу та простору 2-кімнатну квартиру в сучасному житловому комплексі “Нова Англія”. Будинок “Віндзор” введений в експлуатацію 06 вересня 2024 року.
Характеристики квартири:
Локація: Київ, вул. М. Максимовича, 24
Загальна площа: 60,64 кв. м
Розташування: 12-й поверх із 21
Вид із вікон: на будинок “Ноттінгем”
Планування:
• Спальні – 14 кв. м. і 12,7 кв. м
• Кухня-вітальня – 16 кв. м
• Санвузли – 3,9 кв. м. і 2,9 кв. м
• Передпокій – 7,4 кв. м
• Лоджія – 3,6 кв. м
Переваги квартири:
* Без ремонту, що дозволяє створити інтер’єр на власний смак
* Автономне опалення та вентиляція – комфорт у будь-яку пору року
* Закрита територія комплексу з охороною
* Розвинена інфраструктура: магазини, кафе, спортзали, зони відпочинку
* Зручне транспортне сполучення – поруч метро, школи, медичні установи
Жодних додаткових податків для покупця!
Комісія – 2%
Телефонуйте, щоб домовитися про перегляд!



















