Головна >> Продаж квартир >> Об'єкт №213095590

Продається 2к квартира в ЖК Нова Англія, буд. Лінкольн, зданий!  (№ 213-095-590)

Ціна: 3 424 101 грн.

Продається 2к квартира в ЖК Нова Англія, буд. Лінкольн, зданий! фото 1

М. Максимовича, 24, Київ, Голосіївський, м. Васильківська

Характеристики

Ціна: 3 424 101 грн.
№ об'єкта: 213-095-590
Кімнат: 2 розд
Поверх: 21 / 21 ліфт
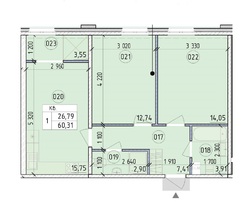
Площа: 60,31 / 26,8 / 15,75 м2
Санвузол: 2 роздільний
Балкон: лоджія
єОселя: -
Ремонт: Без

Опис

Двокімнатна квартира в ЖК “Нова Англія” – чудовий вибір для комфортного життя!

Пропонується простора квартира з продуманим плануванням у сучасному житловому комплексі “Нова Англія”. Будинок “Лінкольн” зданий в експлуатацію 24 квітня 2024 року.

Адреса: Київ, вул. М. Максимовича, 24
Площа: 60,31 кв. м
Поверх: 21 із 21
Вид із вікон: на Паркленд

Основні характеристики:
• Раціональне планування:
• Дві окремі спальні (14 кв. м та 12,7 кв. м)
• Простора кухня-вітальня (15,7 кв. м)
• Два санвузли (3,9 кв. м та 2,9 кв. м)
• Передпокій (7,4 кв. м)
• Лоджія (3,5 кв. м)
• Без ремонту, що дає можливість оформити інтер’єр на свій смак
• Автономне опалення та вентиляція – комфорт у будь-яку пору року
• Чудова інфраструктура: магазини, кафе, спортивні комплекси, парки
• Зручне розташування: поряд громадський транспорт, школи, медичні заклади

Без додаткових податків для покупця!
Комісія – 2%

Телефонуйте, щоб домовитися про перегляд!

Об'єкт на карті