Головна >> Продаж квартир >> Об'єкт №213076250

Продається простора 2-к квартира, ЖК Нова Англія!  (№ 213-076-250)

Ціна: 85 100 $

Продається простора 2-к квартира, ЖК Нова Англія! фото 1

Михайла Максимовича, 24, Київ, Голосіївський, м. Васильківська

Характеристики

Ціна: 85 100 $
№ об'єкта: 213-076-250
Кімнат: 2 розд
Поверх: 19 / 21 ліфт
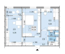
Площа: 59,36 / 28,08 / 14,9 м2
Санвузол: 2 роздільний
Балкон: лоджія
єОселя: +
Ремонт: Без
Додатково: новобудова

Опис

🏠 Продається простора двокімнатна квартира з роздільним плануванням у житловому комплексі 'Нова Англія'!

📌 Параметри:
- Площа: 59.36 м².
- Поверх: 19-й поверх з 21 .
- Адреса: Київ, вул. М. Максимовича 24.
- Ціна: 85 100$ (без комісії).

🔑 Особливості квартири:
- 2 спальні - 12 м² та 16 м², кухня вітальня - 14,9 м², 2 санвузли - 3 м² і 2 м², передпокій - 8,2 м², лоджія - 3,4 м².
- Без ремонту, є можливість створити інтер'єр за власними уподобаннями.
- Індивідуальне опалення та вентиляція для забезпечення комфорту мешканців.
- Особливості інфраструктури: розвинена мережа магазинів, кафе, спортивних закладів та парків для відпочинку.
- Переваги розташування: зручний доступ до громадського транспорту, близькість до освітніх та медичних закладів.

📞 Телефонуйте щоб домовитися про перегляд!

Об'єкт на карті