Продаж дворівневої 4к квартири у ЖК Krona Park 2! єВідновлення, 280, 719 Постанови! (№ 213-127-465)
Ціна: 4 546 900 грн.

Соборна, 25, Бровари, Броварський, Київська
Характеристики
| Ціна: | 4 546 900 грн. |
|---|---|
| № об'єкта: | 213-127-465 |
| Кімнат: | 4 розд |
| Поверх: | 16-17 / 17 ліфт |
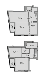
| Площа: | 110,9 / 55 / 9,6 м2 |
| Санвузол: | 2 роздільний + сумісний |
| Балкон: | балкон |
| єОселя: | + |
| Ремонт: | Без |
Опис
Продається дворівнева 4-кімнатна квартира в сучасному житловому комплексі Krona Park II (м. Бровари)
Адреса: вул. Соборна, 25
Площа квартири: 110,9 кв м
Стан: без ремонту
Поверховість: 2 рівні
Будинок введено в експлуатацію: 10.04.2025
Забудовник: Alliance Novobud
Квартира підходить під програми: єВідновлення, Постанови 280 та 719
Переваги квартири та комплексу:
* Просторе двоповерхове планування — зручно для великої родини
* Власна дахова котельня — стабільне і економне опалення
* Закрита територія без автомобілів — безпечно для дітей
* Цілодобова охорона та відеонагляд
* Затишна локація — поряд сосновий ліс, немає шумних трас
* Концепція «місто в місті» — усе необхідне прямо на території ЖК
Інфраструктура району:
Магазини та торгові центри:
5 хвилин пішки до супермаркетів «Сільпо» та «Новус»
15 хвилин до «Ринку на Київській», RC міні-маркету, ринку «Нива»
Поруч великі ТЦ — «Форум», «Бутік», «Ліза»
Поблизу розважальний центр «Термінал»: аквапарк, картинг, кінотеатр, боулінг, льодова арена
Освітні заклади:
У комплексі заплановані власна школа та дитсадок
У пішому доступі: дитсадки «Казка», «Малюк», «Теремок», «Ромашка»
Школи №5, №7, №9, навчальні центри Smartum
Спорт і відновлення:
Фітнес-зали, танцювальні студії, школи бойових мистецтв — у межах 10–15 хвилин
Реабілітаційний центр з басейном неподалік
Для любителів інтенсивних тренувань — Zawod Crossfit Brovary (7 хв на авто)
Зони для відпочинку:
Сосновий ліс усього за 10 хвилин пішки — ідеальне місце для прогулянок, пробіжок, пікніків або велопрогулянок
Телефонуйте, щоб дізнатися більше та домовитися про перегляд!























