Продаж світлої 1к квартири у ЖК Krona Park 2! єВідновлення, 280, 719 Постанови! (№ 213-127-462)
Ціна: 1 993 250 грн.

Соборна, 21, Бровари, Броварський, Київська
Характеристики
| Ціна: | 1 993 250 грн. |
|---|---|
| № об'єкта: | 213-127-462 |
| Кімнат: | 1 розд |
| Поверх: | 17 / 17 ліфт |
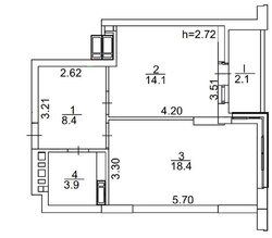
| Площа: | 46,9 / 18,4 / 14,1 м2 |
| Санвузол: | 1 сумісний |
| Балкон: | балкон |
| єОселя: | + |
| Ремонт: | Без |
Опис
Продаж 2-кімнатної квартири в Krona Park II, Бровари
• Адреса: вул. Соборна, 21
• Площа: 46,9 кв м
• Стан: без ремонту
• Будинок здано: 15.07.2022
• Забудовник: Alliance Novobud
• Підходить під програми: єВідновлення, Постанови 280/719
Переваги:
– Власна дахова котельня (тепло і економно)
– Закрита територія без авто
– Цілодобова охорона
– Тиха локація поряд з лісом
– Концепція «місто в місті» — інфраструктура в межах ЖК
Інфраструктура поруч:
– 5 хв пішки: «Сільпо», «Новус»
– 15 хв: Ринок на Київській, RC міні-маркет, ринок «Нива»
– Поруч: ТЦ «Форум», «Бутік», «Ліза», ТРЦ «Термінал» (кіно, аквапарк, лід)
Освіта:
– Власна школа та садок (у проєкті)
– Поруч: садки «Казка», «Малюк», «Теремок», «Ромашка»
– Школи: №5, №7, №9, освітній центр Smartum
Спорт і відпочинок:
– 10–15 хв: фітнес-клуби, зали, танці, бойові мистецтва
– 7 хв на авто: Zawod Crossfit
– 10 хв пішки: сосновий ліс для прогулянок, пікніків, велопрогулянок
Телефонуйте, щоб домовитись про перегляд!



















