Продаж світлої 2к квартири у ЖК Krona Park 2! єВідновлення, 280, 719 Постанови! (№ 213-127-407)
Ціна: 3 050 190 грн.

Соборна, 21, Бровари, Броварський, Київська
Характеристики
| Ціна: | 3 050 190 грн. |
|---|---|
| № об'єкта: | 213-127-407 |
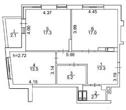
| Кімнат: | 2 розд |
| Поверх: | 16 / 17 ліфт |
| Площа: | 71,1 / 34,3 / 13,5 м2 |
| Санвузол: | 2 роздільний + сумісний |
| Балкон: | балкон |
| єОселя: | + |
| Ремонт: | Без |
Опис
Продається 2-кімнатна квартира в ЖК Krona Park II, Бровари
Адреса: вул. Соборна, 21
Проект від забудовника: Alliance Novobud
Площа: 71,1 кв м
Стан: без ремонту
Будинок зданий в експлуатацію: 15.07.2022
Підходить під єВідновлення, Постанови 280 та 719
Переваги комплексу:
* Власна котельня — стабільне тепло
* Концепція «місто в місті» — магазини, садок, школа на території
* Закрита територія + цілодобова охорона
* Поруч ліс — свіже повітря та тиша
* Віддаленість від магістралей — менше шуму та пилу
Інфраструктура поруч:
*Покупки та розваги:
- 5 хв пішки до супермаркетів «Сільпо», «Новус»
- 15 хв — Ринок на Київській, RC міні-маркет, ринок «Нива»
- Неподалік ТЦ «Форум», «Бутік», «Ліза», розважальний комплекс «Термінал» (льодова арена, кінотеатр, боулінг)
*Освіта для дітей:
- Власна школа та садок на території ЖК
- У пішому доступі: садки «Казка», «Малюк», «Теремок», «Ромашка»
- Школи: №5, №7, №9, освітні центри Smartum
*Спорт і відпочинок:
- У 10–15 хв — фітнес-клуби, танцювальні та бойові школи, центр з басейном
- 7 хв на авто до Zawod Crossfit Brovary для інтенсивних тренувань
- 10 хв пішки до соснового лісу — ідеального місця для пікніків і велопрогулянок
Телефонуйте прямо зараз, щоб домовитись про перегляд!






















