Продається затишна 2-кімнатна квартира у новобудові 'Європейські Липки'! єВідновлення! (№ 213-097-260)
Ціна: 2 486 691 грн.

Межова, 9, Софіївська Борщагівка, Києво-Святошинський, Київська
Характеристики
| Ціна: | 2 486 691 грн. |
|---|---|
| № об'єкта: | 213-097-260 |
| Кімнат: | 2 розд |
| Поверх: | 2 / 6 ліфт |
| Площа: | 67,39 / 33,03 / 18,46 м2 |
| Санвузол: | 2 роздільний |
| Балкон: | балкон |
| єОселя: | - |
| Ремонт: | Без |
| Додатково: | новобудова |
Опис
Продається затишна 2-кімнатна квартира у новобудові 'Європейські Липки' у Софіївській Борщагівці!
📌 Параметри:
- Площа: 67,4 м².
- Адреса: вул. Межова 9, с. Софіївська Борщагівка.
- Здача в експлуатацію будинку №1 заплановано на 3 квартал 2025 року.
- Ціна: 2 486 691 грн. (без комісії).
- Можливий продаж через програму єВідновлення!
- Фото станом на лютий 2025, внутрішні роботи і оздоблення тривають.
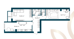
Роздільне планування. Квартира складається з: дві спальні (16,3м² і 16,77м²), кухня-вітальня (18,5м²), два роздільних санвузли (3,5м² і 1,5м²), коридор (10,3м²) і балкон (0,6м²). Квартира продається без ремонту, що дає вам можливість самостійно створити інтер'єр своєї мрії.
🏠Особливості:
* Вдале розташування в передмісті Києва з можливістю швидко дістатися до столиці
* Цілий квартал з власною розвиненою інфраструктурою і торговим центром
* Власний дитячий садок
* Малоповерхова забудова
* Панорамні вікна
* Дизайнерські лобі
* Великий наземний паркінг
* Ландшафтний дизайн
* Закрита територія та безпека 24/7, охорона та відеоспостереження
* Власна служба експлуатації та сервісу
* Підземні сміттєві баки
🌟 Інфраструктура:
Житловий квартал «Європейські Липки» має зручне розташування:
- До Окружної дороги можна доїхати за 13 хвилин на автомобілі.
- До станцій метро «Житомирська» та «Теремки» - 20 і 25 хвилин.
- Через комплекс проходять автобуси №374, №742, №769, №796.
Поруч з кварталом розташовані різні об'єкти інфраструктури:
- ТРЦ «Європарк», де за 5 хвилин на авто можна знайти бутики, магазини техніки, спортивних та дитячих товарів, фуд-корт, супермаркет «Сільпо» та розважальну зону.
- Магазини «Будівельний Двір» та «Unit B», що пропонують товари для ремонту.
- Гіпермаркет «FOZZY Вишневе» знаходиться в 11 хвилинах на авто.
🌆 Зателефонуйте прямо зараз, щоб домовитися про перегляд!





