Продаж 2-кімнатної квартири у ЖК Синергія Сіті! (№ 212-989-065)
Ціна: 3 445 050 грн.

вул. Кобилянської Ольги, 1в/8, Ірпінь, Ірпінь, Київська
Характеристики
| Ціна: | 3 445 050 грн. |
|---|---|
| № об'єкта: | 212-989-065 |
| Кімнат: | 2 розд |
| Поверх: | 2 / 10 ліфт |
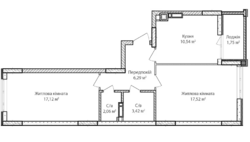
| Площа: | 59,5 / 34,6 / 10,5 м2 |
| Санвузол: | 2 роздільний |
| Балкон: | лоджія |
| єОселя: | - |
| Ремонт: | Без |
| Додатково: | новобудова |
Опис
Продається 2-кімнатна квартира в ЖК Синергія Сіті у місті Ірпінь, Київська область.
Адреса: вул. Кобилянської Ольги, 1в/8, Ірпінь.
Проект від Синергія.
Площа: 59.5 кв. м.
Ціна: 3 445 050 грн. (без комісії)
Стан: після будівельників.
В квартирі є дві окремі спальні кімнати, кухня-вітальня, два роздільних санвузли, передпокій та лоджія.
Будинок №8 введення в експлуатацію - 06.01.2021.
* При 100% оплаті знижка 5% !!!
* Для війскових гарантована знижка 1% від вартості квартири !!!
Опис комплексу:
«Синергія Сіті» — це флагманський проєкт будівельної групи «Синергія» в Ірпені. Комплекс розташований в зеленій зоні міста — поруч парк та набережна, а на іншій стороні річки починається листяний ліс.
- Загалом планується будівництво 72 житлових будинків.
- Територія комплекса закрита від авто та сторонніх, охорона та відеонагляд, пропускна система по FaceID та карткова.
- На території комплексу буде облаштовано 5 км променаду двір парками та алеями. Набережна протяжністю 8 км.
- 'Синергія Сервіс' - це власна сервісна компанія за штатом кваліфікованих сантехніків, електриків, прибиральників та інших спеціалістів.
- Забудовник побудує 5 дитячих садків та 1 комунальний, щоб всім мешканцям комплексу вистачило місць та садки не були перевантажені.
- До найближчих шкіл міста, розвивальних, музичних та мовних курсів на авто можна доїхати за 5 хвилин.
- 5 780 паркомісць навколо житлового комплексу.
- Комплекс розташований недалеко від центру — за 20 хвилин пішки ресторани, кафе й бари міста. Там же можна купити продукти в мережевих супермаркетах, таких як «Фуршет», «Руслан», «Еко-Маркет», «Фора» та Novus. До найближчого «Фуршету» можна дійти за 5 хвилин.
- Для розвитку спорту в кожному дворі будуть спортивні майданчики для дітей різних вікових груп, де можна буде грати в футбол, баскетбол, а взимку заливати як каток.
- В радіусі 5 хвилин їзди відкриті фітнес-клуби Superset, Minigym, Motion Sport & Spa, жіноча фітнес-студія FitCurves та центр бойових мистецтв «Бойова Жаба».
Телефонуйте, щоб домовитися про перегляд!



















