Продається затишна студія у жк OLEGIV Podil (№ 212-952-955)
Ціна: 69 008 $

Олегівська, 36, Київ, Шевченківський, м. Контрактова площа
Характеристики
| Ціна: | 69 008 $ |
|---|---|
| № об'єкта: | 212-952-955 |
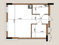
| Кімнат: | 1 суміж, студія |
| Поверх: | 1 / 8 ліфт |
| Площа: | 36,32 / 16 / 6,6 м2 |
| Санвузол: | 1 сумісний |
| Балкон: | відсутній |
| єОселя: | - |
| Ремонт: | Без |
| Додатково: | новобудова |
Опис
🏠 Продається затишна студія у новобудові бізнес-класу 'OLEGIV Podil'!
Введення в експлуатацію клубного дому заплановано на 3 квартал 2025 року.
Адреса: Київ, вул. Олегівська 36.
Ціна - 69008$.
Клубний дім бізнес-класу з невисокою поверховістю, монолітно-каркасна технологія будівництва, опалення - автономне.
Роздільне планування. Квартира продається без ремонту, що дає можливість самостійно створити інтер'єр своєї мрії.
🌟 Переваги проживання в цьому районі:
1️⃣ 10 хв пішки до станції метро 'Контрактова площа'. 15 хв доступність до супермаркетів (Novus, Коло, Ultramarket, Сільпо, АТБ).
2️⃣ Інфраструктура: поруч знаходяться школи (Ліцей №100 'Поділ', Ліцей Вега, школи №11, 17, 'Базис'), садочки(заклади дошкільної освіти №162,120,676, 307 і тд), Києво-Могилянська академія, кінотеатр 'Жовтень', Театр на Подолі, Житній ринок, Медичний центр 'ЛІОР', Андріївська церка, Річковий вокзал, магазини та ресторани для комфортного життя.
3️⃣ Парки і зелені зони роблять цей район ідеальним для прогулянок та відпочинку.
4️⃣ Сучасне життя: будинок обладнаний сучасною інфраструктурою та зручностями для максимального комфорту мешканців. Комплекс має закриту територію, має комплексний захис території, що відповідає концепції 'місто в місті'. Двір без машин, передбачений підземний паркінг (із зарядками для електрокарів), який також може служити як укриття. Лаунж-зона для відпочинку, для маленьких мешканців комплексу передбачені сучасний інтерактивний майданчик та ігровий простір.
🌆 Зателефонуйте прямо зараз, щоб домовитися про перегляд!






